欢迎来到青岛天润百川能源装备有限公司官方的网站!
设为首页
|
加入收藏
|
网站地图
全国服务热线
15053271582
网站首页
关于公司
公司介绍
组织机构
企业文化
业务介绍
新闻动态
公司新闻
行业新闻
公司产品
箱柜类
城市门站
调压器(阀)
西克超声波流量计
埃创流量计
技术支持
下载中心
常见问题
人才招聘
人才培养
福利待遇
招聘职位
案例展示
联系我们
联系方式
访客留言
公司产品 Product
西克超声波流量计
FOLWSIC600
FLOWSIC500
甲烷检测仪
各类进口调压阀配件包
箱柜类
调压计量柜
调压柜
楼栋调压箱
调压器(阀)
RTJ50-0.4TB99Q
Fisher 调压阀
RTZ0.4-1.6AQ
PE管道声波定位仪
埃创流量计
埃创涡轮流量计
电子校正仪
埃创腰轮流量计
城市门站
压力容器类
过滤器
过滤分离器
收发球装置
旋风分离器
燃气过滤器滤芯
压力容器用快开盲板
塔塔里尼BM5A轴流式切断阀
塔塔里尼FLA轴流式调压阀
注脂枪
德国RMG调压器
热门产品 Hot
2018/11/30
收发球装置
2018/11/30
气体过滤器
2018/12/4
PE管道声波定位仪
2018/11/30
FLOWSIC500
2018/11/30
快开盲板
你的位置:
首页
>
公司产品
>
压力容器类
>
旋风分离器
旋风分离器
更新:2018/11/30 15:12:17 点击:
产品品牌
天润
产品型号
产品介绍
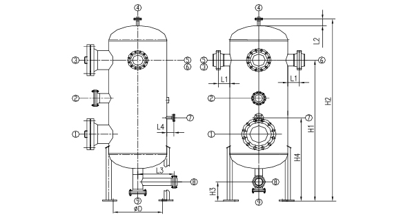
概述:
旋风分离器作为高效的气、固分离设备,广泛用于天然气、煤层气的初级分离,它主要用于除去输送气体介质中携带的固体杂质和粉尘微粒,以确保天然气管道及设备的正常运行。
工作原理:
夹带固体颗粒的气体,由旋风子上部的切向进口进入旋风子,使其沿器壁高速旋转转向器底旋转,到达底部后折向成为内层的上旋气流,从旋风分离器的排气口排出。由于离心力的作用,气流中夹带的尘粒在随气流旋转的过程中逐渐趋向旋风分离器下腔,加上本身的重量而向下移动,由旋风子底部的出口排除;不含固体颗粒的气体离心力小,则由旋风子顶部的出口流出。
技术参数:
设计标准:GB150-2011《压力容器》
结构形式:立式
连接法兰标准:HB/T20592~HG/T20615-2009或ANSI B16.5等
设计压力:<10MPa
设计温度:-40℃~80℃
最大压降:《0.03MPa
分离精度和效率:
(1)固体直径为100um以上的粉尘分离效率100%。
(2)固体直接为10um以上的粉尘分离效率99.9%。
(3)固体直接为10um以下的粉尘分离效率98.5%。
材料标准:
GB713-2008
NB/T47008-2010
连接法兰标准:HG/T20592-20615-2009或ANSI B16.5
结构形式:立式
安装形式:垂直安装
规格释义:
DN 800/DN250-PN25-主筒体直径DN800/进、出口直径DN250
PN25-设计压力2.5(MPa)
安装与连接方式
旋风分离器为水平安装和立式安装。水平安装时设备的主轴线水平度小于5/1000,垂直安装时设备的主轴线不垂直度小于3/1000。
设备采用法兰连接,并配置放空阀、安全阀、压力表及排污阀等。
应用范围:
天然气、煤层气的初级分离;
去除干燥床下游的干燥剂颗粒;
去除催化床下洲的催化剂粉末;
用于计量和调压站;
用于城市配气系统
更多产品
塔塔里尼BM5A轴流式切断阀
塔塔里尼FLA轴流式调压器
注脂枪
德国RMG调压器
各类进口调压阀配件包
佳得玛(法国)便携式激光检测
手持式激光甲烷遥测仪
PE管道声波定位仪